Blueprints

"Blueprints that shape dreams into homes"
Bringing architectural visions to life with precision and ingenuity.

Where in the World Our Blueprints have gone to…
Our blueprints have become a global sensation, shipping to customers around the world. While we have a strong customer base in the USA and Canada, our designs have captured the attention of homeowners and builders from various corners of the globe. Whether it's a cozy cabin in the woods or a contemporary dwelling, our versatile designs are sought after by those who seek both functionality and style. We take pride in our ability to bring architectural inspiration to customers near and far, catering to their unique visions and aspirations for their dream homes.
Featured Clients
-
Elgin, South Carolina
Josh, owner of Goat Daddy's Farm and Animal Sanctuary, is bringing our Hickory Outlook blueprints to life. The sanctuary's focus on animal welfare and sustainability makes it the perfect setting for our design. We're honored to be part of this project, creating a space where guests can reconnect with nature in South Carolina's countryside.
-
Hocking Hills, Ohio
Ashton took our Hickory Outlook blueprints and, in just 6 months, crafted another beautiful property in Hocking Hills, Ohio. Now they've built multiple of our tiny houses! These getaways seamlessly blend into the natural landscape, and we’re excited to see our designs come to life in such an incredible setting.
-
Mosier, Oregon
Dennis is nearing completion of his dream getaway using our Hickory Outlook blueprints on a serene property with stunning Mount Washington views. His craftsmanship is bringing our design to life, perfectly blending the home with the natural landscape. We're proud to be part of his journey.

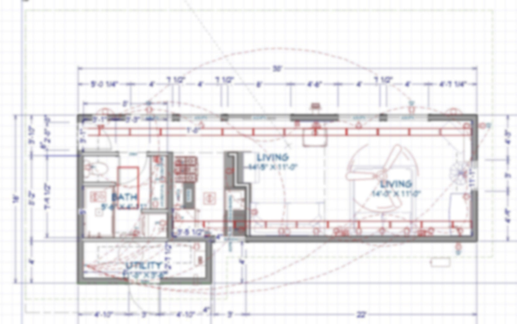
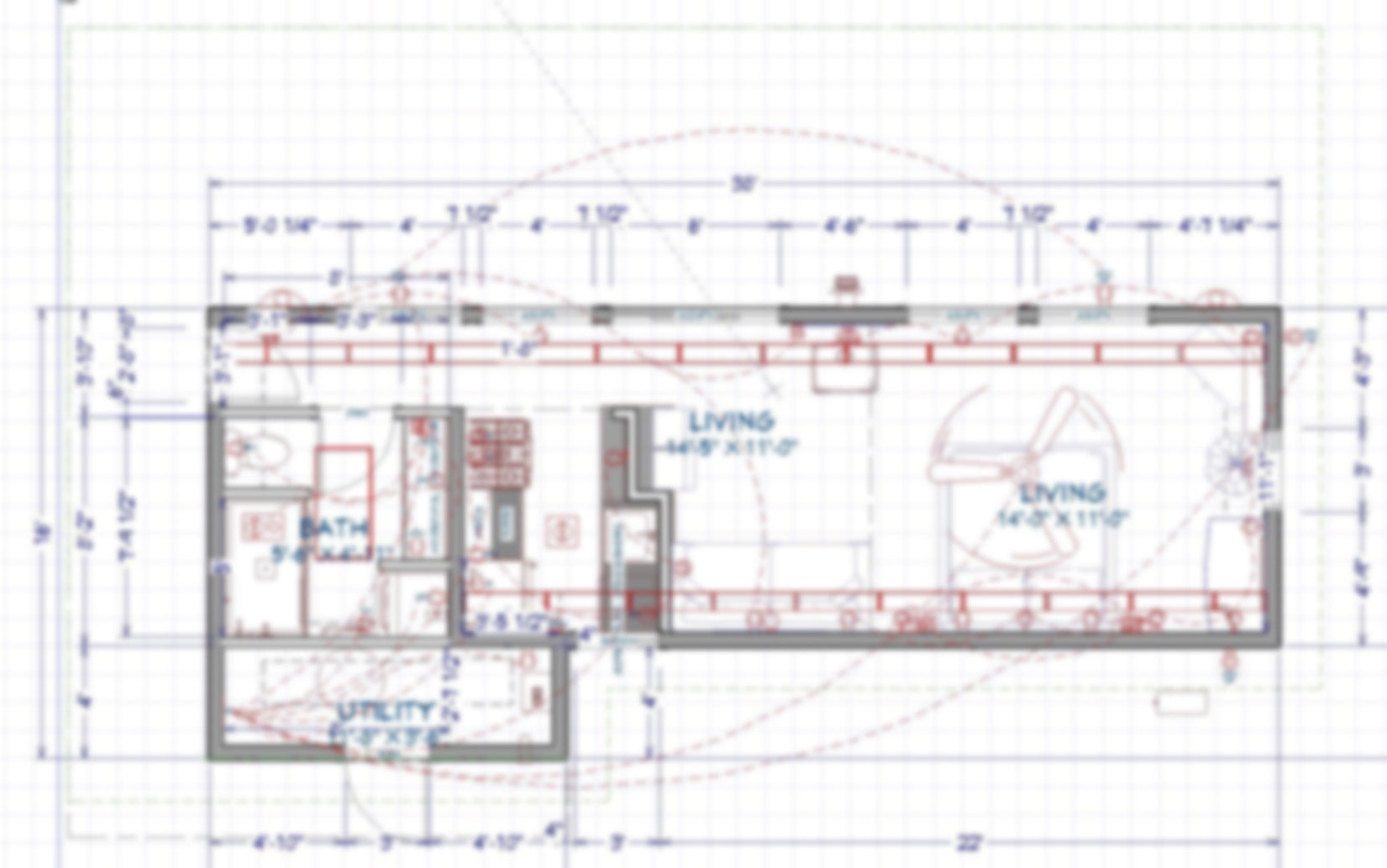
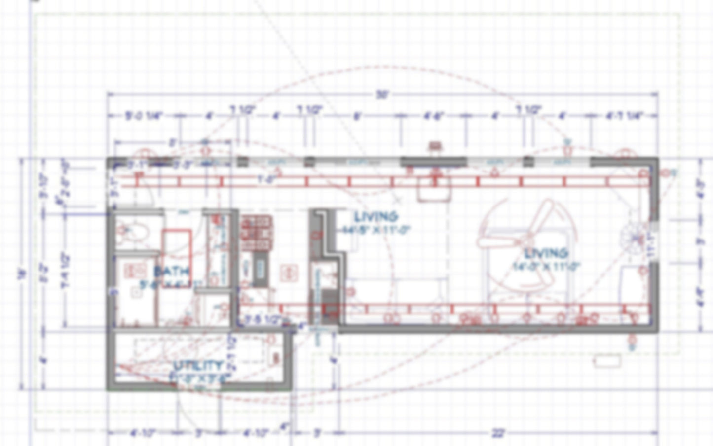
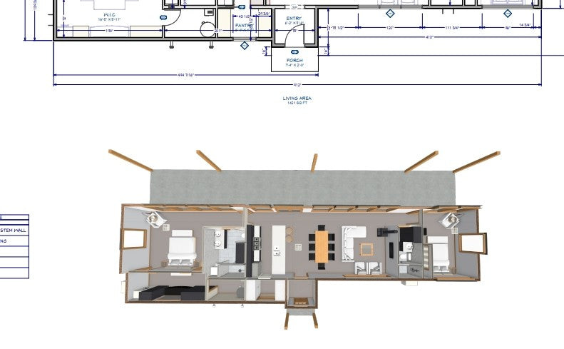
AKaydia
Hickory Outlook Blueprints
Share





























AKaydia
Hickory Grande Blueprints
Share




AKaydia
Scenic Orchard Blueprints
Share







